공동주택의 발코니 설계 및 구조변경 절차, 대피공간 설치기준

발코니 (건축법시행령 제2조)
"발코니"란 : 건축물의 내부와 외부를 연결하는 완충공간으로서 전망이나 휴식 등의 목적으로 건축물 외벽에 접하여 부가적으로 설치되는 공간을 말한다. 이 경우 주택에 설치되는 발코니로서 국토교통부장관이 정하는 기준에 적합한 발코니는 필요에 따라 거실, 침실, 창고 등의 용도로 사용 할 수 있습니다.
1. 발코니 등의 구조변경 절차 및 설치기준
제1조(목적)이 기준은 건축법 시행령 제2조제14호 및 제46조제4호의 규정에 따라 주택의 발코니 및 대피공간의 구조변경절차 및 설치기준을 정함을 목적으로 한다.
제2조(단독주택의 발코니 구조변경 범위) 단독주택(다가구주택 및 다중주택은 제외한다)의 발코니는 외벽 중 2면 이내의 발코니에 대하여 변경할 수 있다.
제3조(대피공간의 구조) (1) 건축법 새행령 제46조제4항의 규정에 따라 설치되는 대피공간은 채광방향과 관계없이 거실 각 부분에서 접근이 용이하고 외부에서 신속하고 원할한 구조활동을 할 수 있는 장소에 설치하여야 하며, 출입구에 설치하는 갑종방화문은 거실쪽에서만 열 수 있는 구조로서 대피공간을 향해 열리는 밖여닫이로 하여야 한다.
2. 공동주택의 발코니 설계 및 구조변경 업무처리 지침
1. 목적 : 발코니 및 노대 등의 설계기준 및 구조변경 절차를 정하여 탈법 및 불법적인 발코니 구조변경을 방지함을 목적으로 한다.

2. 발코니 설계 및 설치 기준
- 건축법상 바닥면적에 포함되는 1.5미터 초과된 발코니 및 노대동은 주택법상 주거전용면적으로 산입
- 단독 및 공동 주택에 설치되는 발코니는 단서조항에 따라 다양한 용도로 사용가능하나, 기타용도의 건축물(오피스텔은 발코니 설치불가)에 설치되는 발코니는 예전과 동일하게 '노대'로만 발코니의 설치가 가능할 것임.

발코니로 볼 수 없는 경우
- 내부와 내부, 외부와 외부를 연결하는 경우
- B-2의 기준이 실(A)가 되는 경우 : B-1, B-2, B-14는 합하여 실(A)의 외벽에서부터 1.5m까지 계산
- B-8, B-17은 합하여 실(B)의 외벽에서부터 1.5m까지 계산
- B-2의 기준이 실(B)가 되는 경우 : B-1, B-14는 합하여 실(A)의 외벽에서부터 1.5m까지 계싼
- B-2, B-8, B-17은 합하여 실(B)의 외벽에서부터 1.5m까지 계산
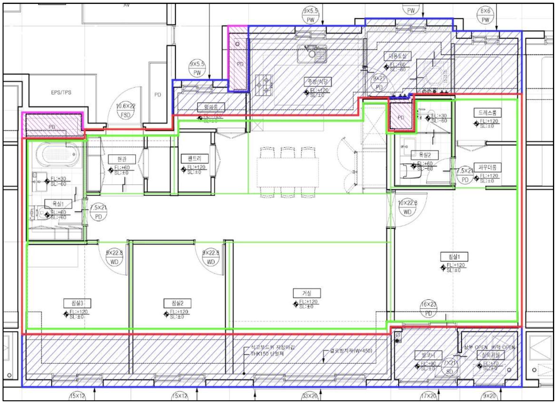
발코니2,4는 실내(침실2)와 외부가 만나므로 발코니이지만 1.5m를 초과하므로 주거용(또는 바닥)면적에 포함합니다. 또한 발코니7은 실내(거실)와 외부가 만나므로 발코니이지만 1.5m를 초과하고(발코니 8이 1.5m이므로)하므로 주거전용(또는 바닥)면적에 포함, 발코니11: 실내(거실)와 외부가 만나므로 발코니이지만 1.5m를 초과하므로 주거전용(또는 바닥)면적에 포함

발코니 등의 바닥면적 산정
*노대의 면적 A = L X W (외벽의 중심선으로부터 노대등의 끝부분까지의 면적)

노대의 면적 A = L X W (외벽의 중심선으로부터 노대등의 끝부분까지의 면적)
발코니 등의 바닥면적 산정
*노대의 면적 A = L X W (외벽의 중심선으로부터 노대등의 끝부분까지의 면적)

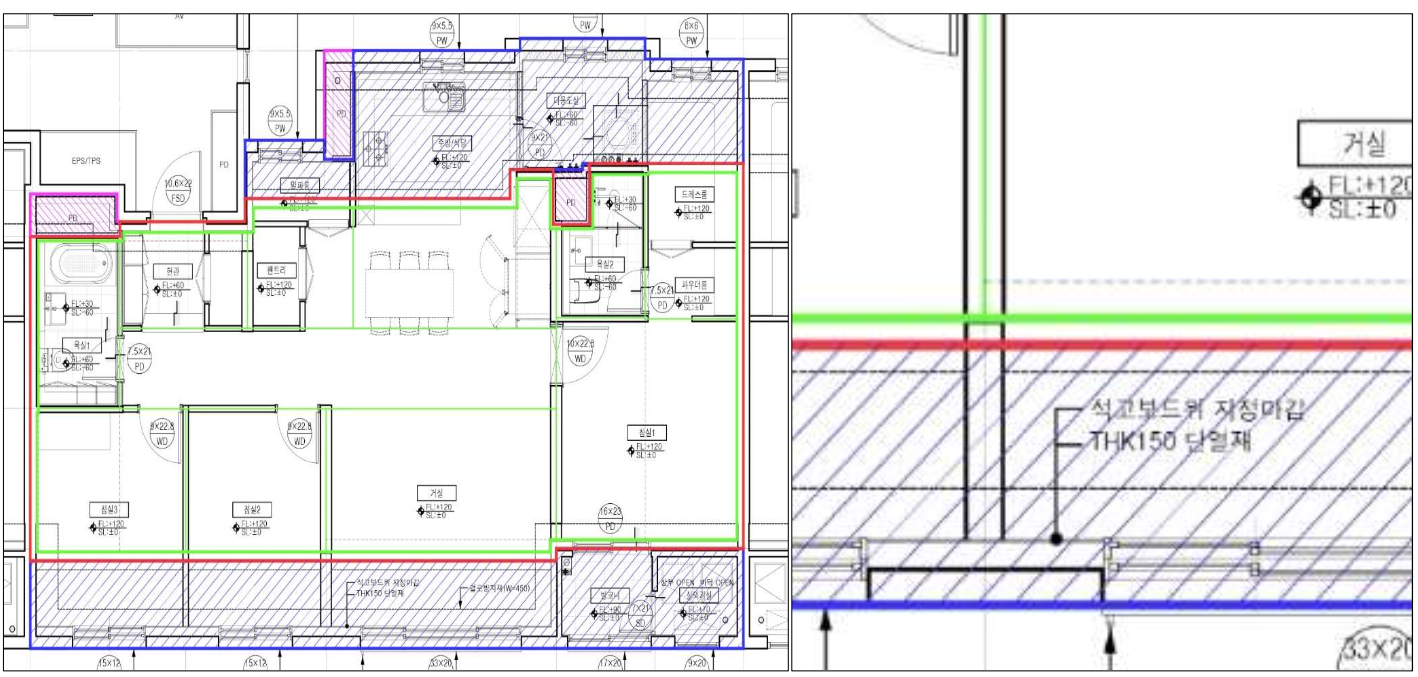
<확장형 발코니 외부 단열재 시공 시 외벽중심 기준 면적산정>
| 현 행 | 개 선 | 면적제외 |
![]() |
![]() |
단열재 및 발코니벽체 (1/2) 면적 산정 제외 |

대피공간
결론 : 대피공간의 문과 현관문은 방화문으로 설치하며, 언제나 닫힌상태를 유지하거나 자동으로 닫히는 구조로 할 것(도어크로저 설치)
발코니 등의 구조변경절차 및 설치기준
제3조(대피공간의 구조)
- 건축법 시행령 제46조제4항의 규정에 따라 설치되는 대피공간은 채광방향과 관계없이 거실 각 부분에서 접근이 용이하고 외부에서 신속하고 원할한 구조활동을 할 수 있는 장소에 설치하여야 하며, 출입구에 설치하는 갑종방화문은 거실쪽에서만 열 수 있는 구조로서 대피공간을 향해 열리는 밖여닫이로 하여야 한다.
- 대피공간은 1시간 이상의 내화성능을 갖는 내화구조의 벽으로 구획되어야 하며, 벽, 천장 및 바닥의 내부마감재료는 준불연재료 또는 불연재료를 사용하여야 한다.
발코니 등의 구조변경절차 및 설치기준
제3조(대피공간의 구조)
- 대피공간은 외기에 개방되어야 한다. 다만, 창호를 설치하는 경우에는 폭 0.7미터 이상, 높이 1.0미터 이상(구조체에 고정되는 창틀 부분은 제외한다)은 반드시 외기에 개방될 수 있어야하며, 비상시 외부의 도움을 받는 경우 피난에 장애가 없는 구조로 설치하여야 한다.
- 대피공간에는 정전에 대비해 휴대용 손전등을 비치하거나 비상전원이 연결된 조명설비가 설치되어야 한다.
- 대피공간은 대피에 지장이 없도록 시공, 유지관리되어야 하며, 대피공간을 보일러실 또는 창고 등 대피에 장애가 되는 공간으로 사용하여서는 아니된다. 다만, 에어컨 실외기 등 냉방설비의 배기장치를 대피공간에 설치하는 경우에는 다음 각 호의 기준에 적합하여야 한다.
- 1. 냉방설비의 배기장치를 불연재료로 구획할 것
- 2. 제1호에 따라 구획된 면적은 건축법 시행령 제46조제4항제3호에 따른 대피공간 바닥면적 산정시 제외할 것
건축법시행령 제46조(방화구획의 설치)
공동주택 중 아파트로서 4층 이상인 층의 각 세대가 2개 이상의 직통계단을 사용할 수 없는 경우에는 발코니에 인접 세대와 공동으로 또는 각 세대별로 다음 각 호의 요건을 모두 갖춘 대피공간을 하나 이상 설치하여야 한다. 이 경우 인접 세대와 공동으로 설치하는 대피공간은 인접 세대를 통하여 2개 이상의 직통계단을 쓸 수 있는 위체에 우선 설치되어야 한다.
- 대피공간을 바깥의 공기와 접할 것
- 대피공간은 실내의 다른 부분과 방화구획으로 구획될 것'
- 대피공간의 바닥면적은 인접 세대와 공동으로 설치하는 경우에는 3제곱미터 이상, 각 세대별로 설치하는 경우에는 2제곱미터 이상일 것
건축물의 피난, 방화구조 등의 기준에 관한 규칙
제14조(방화구획의 설치기준)
- 영 제46조에 따라 건축물에 설치하는 방화구획은 다음 각호의 기준에 적합하여야 한다.
- 제1항에 따른 방화구획은 다음 각 호의 기준에 적합하게 설치하여야 한다. 1. 영 제46조의 규정에 의한 방화구획으로 사용하는 제26조에 따른 갑종방화문은 언제나 닫힌 상태를 유지하거나 화재로 인한 연기, 온도, 불꽃 등을 가장 신속하게 감지하여 자동적으로 닫히는 구조로 할 것.
'건축' 카테고리의 다른 글
| 계단 및 승강기 기준 - 건축법에서 산정하는 승강기 기준법과 주택법 기준에 따른 승강기 기 (1) | 2022.02.24 |
|---|---|
| 단위세대 체크사항 - 단위세대 작성 및 체크사항 확인법 (2) | 2022.02.23 |
| 건축 치수 및 기준척도 [MC치수, 안목치수, 부위별 기준면, 수직계획모듈] (1) | 2022.02.21 |
| 면정산정을 위한 기본개념 설명(건축면적, 바닥면적, 연면적) - 면적산정 설계지침 (0) | 2022.02.20 |
| 단열기준 방법 -부대시설 및 공동주택 도서 작성을 위한 기본 내용 체크 (0) | 2022.02.20 |


댓글