
면적산정 설계지침 : 건축면적 / 바닥면적 / 연면적
- 건축면적 : 건축물의 외벽(외벽이 없는 경우에는 외곽부분의 기둥)의 중심선으로 둘러싸인 부분
1-1. 건축면적 산정기준 (건축법시행령 제119조 제1항 2호)
- 지표면 부분 - 지표면상 돌출높이가 1m 이하에 있는 부분은 건축면적에서 제외됩니다.
- 보행통로, 차량통로- 보행통로나 차량통로는 건축면적에서 제외됩니다.
- 지하층 - 지하주차장 경사로, 건축물의 출입구 상부는 견축면적이에서 제외됩니다.
- 편의시설 - 생활폐기물 보관함(음식물쓰레기, 의류 등의 수거함)은 건축면적에서 제외됩니다.
- 처마 차양, 부연 그 밖에 이와 유사한 것으로서 그 외벽의 중심서으로부터 수평거리 1m 이상 돌출된 부분 -끝 부분으로부터 수평거리 1m를 후퇴한 선으로 둘러싸인 부분의 수평투영 (발코니 면적은 건축면적에서 산입)
1-2. 건축면정 산정방식
1) 단위평면별 건축면적 산정
- 가. 단위세대중심선면적 산출
- 나. 발코니 면적 산출
- 다. 단위세대 중심선면적과 불코니부분 건축면적 합산하여 건축면적 산출
2) 코어부분 건축면적 산정
- 가. 코어면적 산출값 + PD +ST + EPS + 기타 (꺾임부위 등)
- 나. 캐노피 건축면적 산정 (기둥중심선 기준으로 산출) (단, 처마가 기둥중심에서 1m 이상 돌출된 경우는 캐노피 끝선에서 1m 후퇴하여 산정)
바닥면적 (건축법 시행령 제 119조 제1항 3호)
건축물의 각 층 또는 그 일부로서 벽, 기둥 그 밖의 이와 유사한 구획의 중심선으로 둘러싸인 부분의 수평투영면적으로 한다.
2-1. 용어 정의
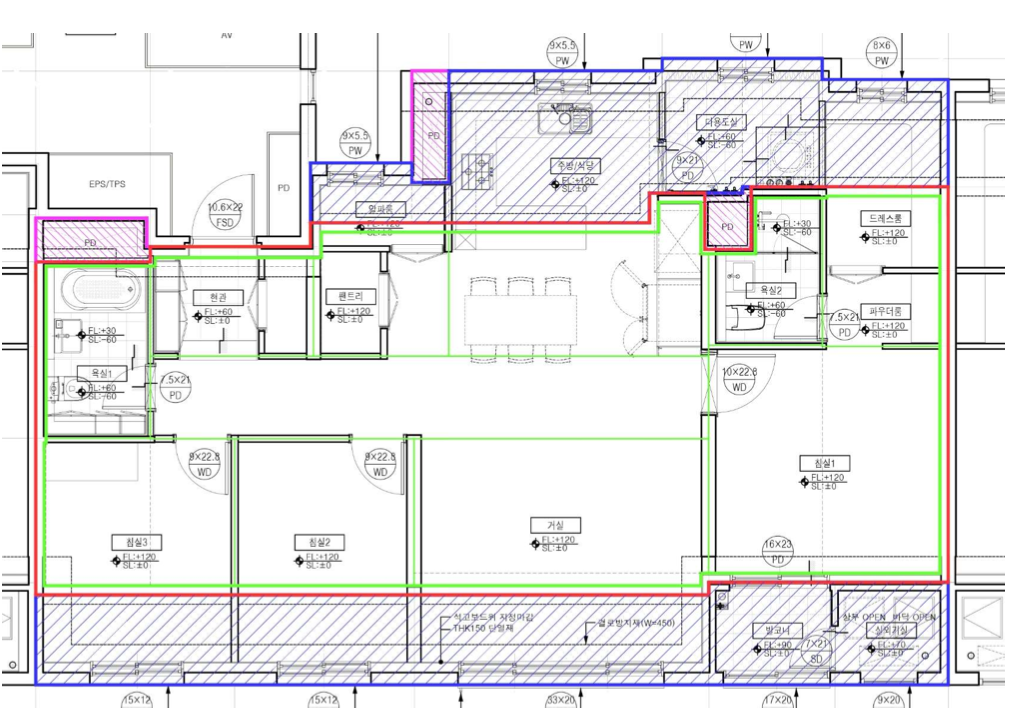
1) 주거전용면적 : 집합건물법 제2조 3항의 전유부분 면적을 말하며, 침실+거실+주방+욕실 등 면적의 합계
2) 주거공용면적 : 집합건물법 제3조 4항의 전유부분에 속하지 아니하는 건물부분으로서 계단+복도+주동출입구 등 공동주택의 지상층에 있는 공용면적을 말한다. (주택공급에 관한 규칙 제8조 7항의 1)
3) 그 밖의 공용면적 : 집합건물법 제3조 4항의 전유부분에 속하지 아니한 부분 중 주거 공용면적을 제외한 지하층, 관리사무소, 경로당 등의 부대복리시설 공용면적(주택공급에 관한 규칙 제8조 7항의 2)
2-2. 바닥면적 산정기준
1) 주거전용면적
가. 세대내 각실 (침실, 거실, 주방/식당, 욕실, 현관, 창고)의 바닥면적의 합계
나. 습식공법으로 건설하는 철근콘크리트 벽식 공동주택에 대하여는 안목치수 적용을 원칙으로 한다. 다만, 발코니, 복도 등의 경우에는 중심선 치수 설계방법을 적용할 수 있다. [주택의 설계도서 작성기준 제2장 제14조]

2) 주거전용면적 산정방식
가. 세대간의 MC 기준선을 인접세대와 동일조건 유지를 위해 각 부위별 MC기준선으로 산정
나. 치수 및 기준척도 (주택건설기준등에 관한 규칙 제3조)
- 치수 및 기준척도는 안목치수를 원칙
- 거실 및 침실 평면 각변의 길이는 5cm단위로 기준척도
- 부엌, 식당, 욕실, 화장실, 복도, 계단 및 계단참 각변의 길이 또는 너비는 5cm단위로 기준척도
- 거실 및 침실 반자높이 (반자를 설치하는 경우에만 해당)는 2.2m 이상으로하고 총 높이는 2.4m 이상으로 하되 5cm단위로 기준척도
다. 세대내 각 실의 바닥면적 합계와 단위세대의 가로, 세로 면적의 합계와 일치 여부를 검사합니다.
라. 소수점 넷째자리로 표현하는 것을 원칙으로 한다. (단, 발주처 요구에 따라 자릿수 조정가능)
3) 주거공용면적
가. 복도, 계단실, 비상계단실, 주현관, 엘리베이터 홀, 승강로 등 2세대 이상이 공용으로 사용하는 부분 (PD,AD,AV,ST 등은 면적에 미포함)
나. 세대내 벽체공용면적

4) 기타 공용면적
- 가. 지하공용면적 (지하활용시 설치되는 실의 면적 등)
- 나. 관리사무소, 경비실, 주민공동시설 등 주민공동으로 사용하는 부분
- 다. 피난층 계획시 그 면적을 포함시킨다.(건축법시행령 119조 4항)
5) 지하주차장 면적
- 중심선면적으로 산정, 계단실을 포함하고 경사로에 지붕이 설치되는 경우 건축면적에 포함하지 않음.
- 지하방화문 내부코아면적은 지하주차장 면적으로 산입
- 연면적 (영 제119조 제1항 제4호)
각 층(지상, 지하) 바닥면적의 합계를 말하며 건축물의 전체 규모를 판단하는 기준
1. 용적률 산정시 제외
- 지하층
- 지상층의 주차용 면적(부속용도인 경우)
- 초고층 건축물과 준초고층 건축물에 설치하는 피난안전구역의 면적
- 건축물의 경사지붕 아래에 설치하는 대피공간의 면적

'건축' 카테고리의 다른 글
| 공동주택의 발코니 설계 및 구조변경 절차, 대피공간 설치기준 (0) | 2022.02.22 |
|---|---|
| 건축 치수 및 기준척도 [MC치수, 안목치수, 부위별 기준면, 수직계획모듈] (1) | 2022.02.21 |
| 단열기준 방법 -부대시설 및 공동주택 도서 작성을 위한 기본 내용 체크 (0) | 2022.02.20 |
| 법규기준 확인하는 법 - 건축법, 주택법 관련 내용 체크 방법 및 순서 (0) | 2022.02.18 |
| 광명 돔 구조, 대공간 건축구조, 돔 구조 설계 (0) | 2022.02.15 |
댓글